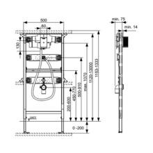
Инсталляция для писсуара Tece Profil 9320013
Модуль для писсуара для установки панелей смыва TECEfilo. Для
крепления на профиле TECEprofil или для монтажа в металлических или
деревянных каркасных стенах, перед стеной или в качестве углового
модуля.
Полностью собран, состоит из:
• Клапан писсуара TECE U 2 с контролем потока и системой защиты
застенного пространства
• Электропитание 230 / 12 В, встроенный трансформатор для
подключения к сети 220 В
• Настенный уголок для подводки воды Rp 1/2"
• Две регулируемых опоры для напольного крепления 0-200 мм
• Монтажная глубина 75 мм
• Две шпильки М8 для крепления писсуара
• Регулируемая монтажная пластина
• Регулируемое по высоте подключение к канализации
• Фановый отвод DN 50 с защитной заглушкой
• Крепежные элементы для установки писсуара
• Подключение воды 1/2"
Дополнительно приобретается:
• Панель смыва TECEfilo
• Комплект крепежных элементов для установки модуля
Внимание:
не подходит для установки полувстраиваемых писсуаров,
например, Keramag Joly and Visit.
крепления на профиле TECEprofil или для монтажа в металлических или
деревянных каркасных стенах, перед стеной или в качестве углового
модуля.
Полностью собран, состоит из:
• Клапан писсуара TECE U 2 с контролем потока и системой защиты
застенного пространства
• Электропитание 230 / 12 В, встроенный трансформатор для
подключения к сети 220 В
• Настенный уголок для подводки воды Rp 1/2"
• Две регулируемых опоры для напольного крепления 0-200 мм
• Монтажная глубина 75 мм
• Две шпильки М8 для крепления писсуара
• Регулируемая монтажная пластина
• Регулируемое по высоте подключение к канализации
• Фановый отвод DN 50 с защитной заглушкой
• Крепежные элементы для установки писсуара
• Подключение воды 1/2"
Дополнительно приобретается:
• Панель смыва TECEfilo
• Комплект крепежных элементов для установки модуля
Внимание:
не подходит для установки полувстраиваемых писсуаров,
например, Keramag Joly and Visit.
- Глубина, см: 9
- Тип инсталляции: для писсуара
- Страна: Германия
- Коллекция: Profil
- Гарантия производителя 10 лет
- Артикул 9320013
- Материал сталь
- Ширина, см 50
- Высота, см: 112
Cопутствующие товары
